Ресторан "Fabis "
Категория:
Ресторан, Караоке бар
Локация: г. Ташкент
год: 2018
Статус: Реализация
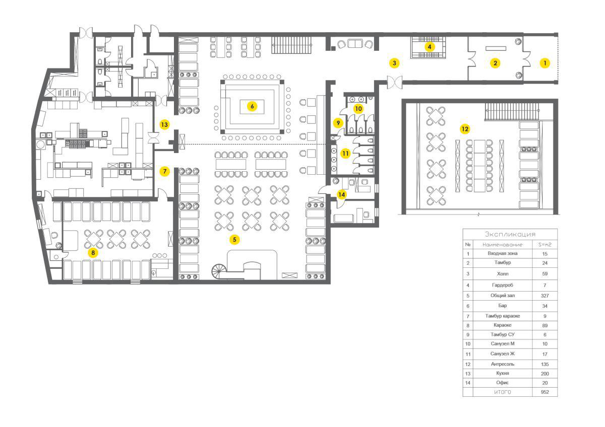
Площадь: 950 кв.м
Проектная группа:
Худ. Рук: Заур Мансуров
Арт директор: Ренат Артов
Дизайнер: Маргарита Караваева / Ибрагим Каримов
Задача:
Реконструировать старое здание ,подчеркнув в интерьере его архитектурные и конструктивные составляющие.
Сделано:
При входе в ресторан Вас встречает стена из глянцевых листов перфарированного металла медного цвета. Чтобы еще больше подчеркнуть красоту металла ,мы добавили подсветку ,засчет чего стена заиграла тенями и стала объемной.
Под главным цилиндрическим сводом расположился центральный зал с танцполом сценой и местами для отдыха.Высота потолка здесь около 12 метров, которую мы обыграли с помощью хаотично развешанных деревянных и медных светильников ручной работы. Функцию зонирования в зале выполняют стеллажи-ширмы. Отдельная мягкая VIP зона на антресоли, откуда открывается панорамный вид на весь зал.
Особое внимание в этом проекте заслуживает бар. В отделке бара заметно смешение элементов индустриального стиля с классическими. Фасад бара классический, потолок-он же антресоль ,зашит глянцевыми латунными листами, в которых отражается вся игра света и бликов.
Помимо основного зала с танцполом и сценой в ресторане предусмотрен караоке зал, где можно проявить все свои артистические и вокальные возможности . Тематика караоке более сдержанная и близка к классике.
