Фьюжн на Сабзавоте
Категория: частный дом
Локация: г. Ташкент, Узбекистан
год: 2017
Статус: Реализация
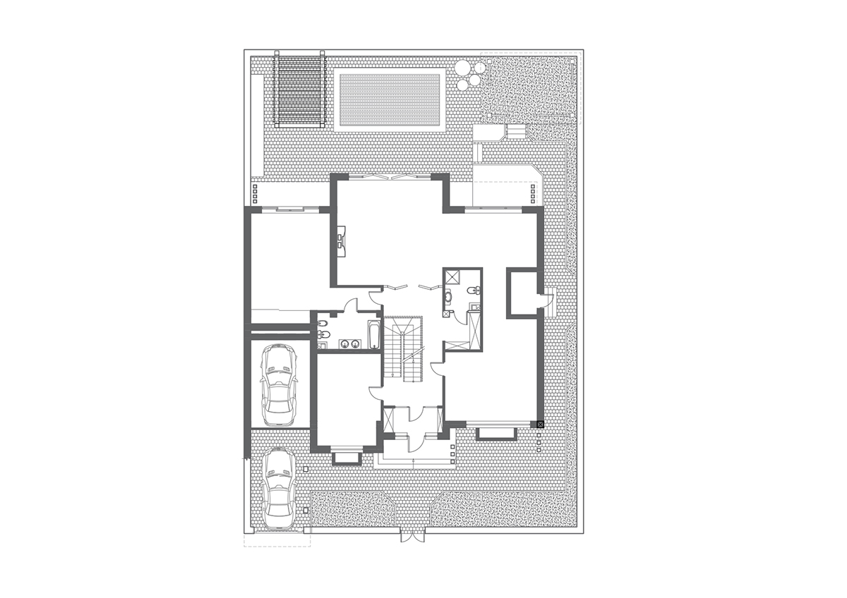
Площадь: 600 кв.м
Проектная группа:
Худ. Рук: Заур Мансуров
Архитектор: Анвар Айтураев
Задача:
дом в стиле хай-тек
Сделано:
Частный дом с прилегающим участком выполнен в стиле хай-тек. для отделки фасада применили белый облицовочный кирпич, ДПК панели цвета золотой дуб, металл и дерево цвета венге в сочетании с панорамным остеклением. Фасад дома имеет строгие геометрические формы. На участке компактно размещаются навес для машин, зона летней кухни, бассейн и минималистичные ландшафтные композиции по периметру участка
