Геометрия хай-тека
Категория: частный дом
Локация:г. Ташкент
год: 2017
Статус: Реализация
Площадь:790 кв.м
Проектная группа:
Худ. Рук: Заур Мансуров
Архитектор: Саидазиз Расулов
3D визуализация: Ибрагим Каримов
Задача:
преобразовать существующий дом в современный
Сделано:
Перед нами стояла нелегкая задача. На участке уже был построен дом, который имел необычную конфигурацию. Хотелось создать современный фасад в стиле хай-тек, который дополнительно подчеркнул необычные формы.
Для этого мы предложили использовать ДПК панели под дерево, обычную покраску белого цвета, травертин и гранит. За счет этих материалов мы заставили фасад заиграть полутонами и контрастами. Дополняют картину оконные рамы цвета антрацит и навесы из стекла, подвешенные на изящных металлических тросах. Очень детально и деликатно наша студия подошла к освещению фасада. Тщательно обдумывались форма светильников, их расположение, цвет лампы и как он будет светить.
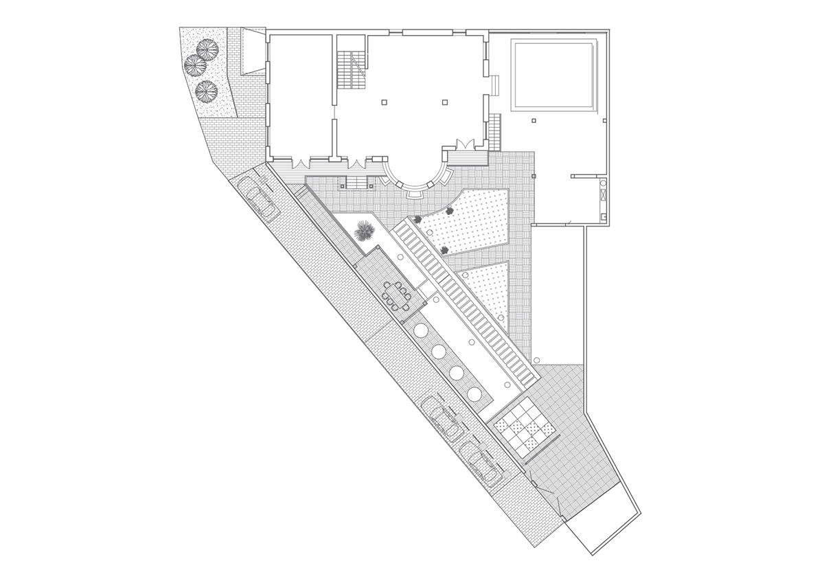
Отдельно разрабатывался и ландшафт участка. Для дорожек и бордюров мы использовали тот же травертин, что на фасаде. Участок получился многофункциональным, так как здесь разместились летняя кухня, бассейн ,спортивная площадка и зеленые участки для ландшафтных композиций.
