C&C House
Категория: частный дом
Локация:г. Ташкент
год: 2017
Статус: Реализация
Площадь:790 кв.м
Проектная группа:
Худ. Рук: Заур Мансуров
Архитектор: Саидазиз Расулов
3D визуализация: Ибрагим Каримов
Задача:
преобразовать существующий дом в современный
Сделано:
Интерьер очень насыщенный. В нем сочетается множество стилей: хай-тек, модерн, классика, присутствуют элементы американского стиля, арт-деко – одним словом контемпорари.
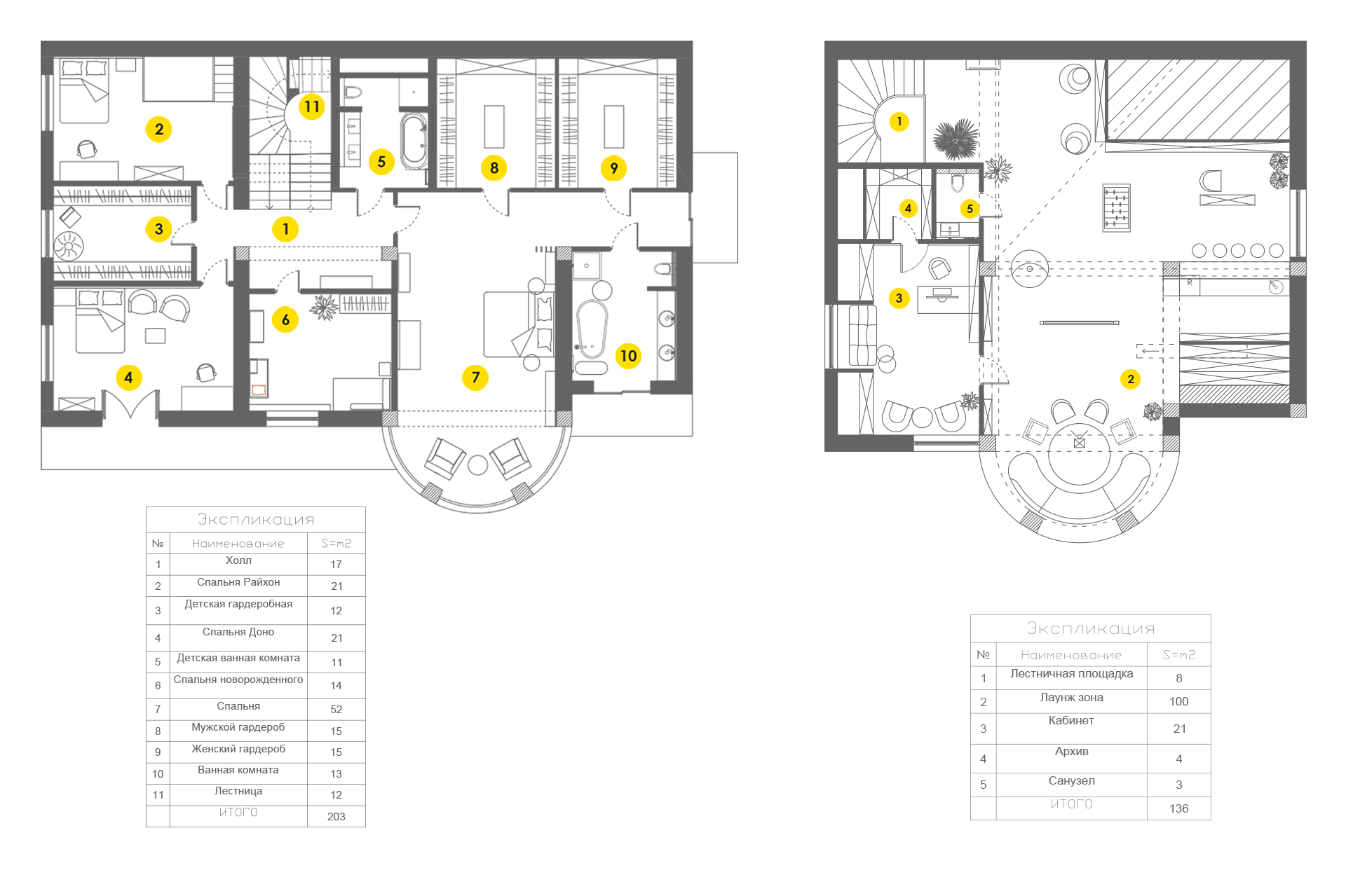
В доме 2 этажа, мансарда и подвал. При каждой спальне есть свой гардероб и санузел.
При входе в дом вы попадаете в просторный холл небесного цвета с большим зеркалом во весь рост и лестницей, которая ведет в подвал и на 2 этаж. Ступени лестницы из дерева, перила в стиле хай-тек из стекла с изящными металлическими перегородками черного цвета .Сам поручень тоже из дерева.
В подвале сауна, гараж, тренажерный зал с раздевалкой , лаунж зона и подсобка. Здесь настоящие изобилие отделочных материалов: ламинат, плитка, покраска, кирпич ,дерево ,металл и даже стабилизированный мох. В гараже мы предусмотрели всевозможные места для хранения спортивного инвентаря и бытовой мелочи.
На первом этаже расположены кухня, гостиная, столовая, спальня и прачечная. Кухня в американском стиле с белоснежными фасадами и фрезеровкой, фартук из керамической плитки ручной работы. В центре кухни такой характерный для американского стиля кухонный остров, где разместилась дополнительная рабочая зона с одной стороны, с другой- барная стойка.
За островом большой обеденный стол с панорамным видом на внутренний двор. Стол и стулья для обеденной зоны из дерева, сидушка и спинка стульев из мягкого текстиля серого графитового цвета, что задает комнате определенное настроение уюта и тепла.
В гостиной есть еще одна обеденная зона для гостей. Светильники над столом от дизайнера Тома Диксона добавляют интерьеру эклектичности. Стены белого цвета с классическими тягами на контрасте сочетаются с темной мебелью и деревом. Атмосфера гостиной и столовой зоны располагает к отдыху, особенно когда вы сидите в мягких обволакивающих креслах и наблюдаете как горит огнь в камине, а рядом ласкает слух звуки пианино.
Детские комнаты в доме наполнены светом. Чтобы сделать детские уютными и теплыми, мы использовали несколько типов освещения: основной свет в виде потолочных спотов, декоративная лампа и дополнительные подсветки. Почти все светильники в детских из композитного материала и похожи воздушное облако с приятным теплым свечением. На стенах мы применили роспись и графитовые доски для свободного творчества. Еще одним обязательным аксессуаром спален стали ковры. В каждую комнату мы старались подбирать ковер с соответствующим орнаментом.
В спальне хозяев мы предусмотрели мягкую зону с креслами и журнальным столиком, где можно расположиться в холодной зимний вечер и, попивая чашечку горячего чая, любоваться видом своего сада. Свет, попадая в большие окна, освещает туалетный столик и заставляет ожить стену из деревянных реек. За ширмой прямо по коридору мы скрыли индивидуальный санузел для спальни хозяев. Санузел очень просторный и светлый, с большим окном. Также на этаже для каждого члена семьи есть свой гардероб.
На последнем, мансардном этаже также найдется свой уголок как для ребенка, так и для взрослого. Здесь мы разместили рабочий кабинет, архив , лаунж зону, бар и даже гамак. Стилистика мансардного этажа близка к лофту- само место расположило нас к этому стилю. Мы заполнили пространство по максимуму, задействовали каждый угол и даже не упустили возможность подвесить на балку арт кресло «Bubble chair» .
