Бар-ресторан "Cinzzano"
Категория: Бар-ресторан
Локация: г. Ташкент
год: 2018
Статус: Реализация
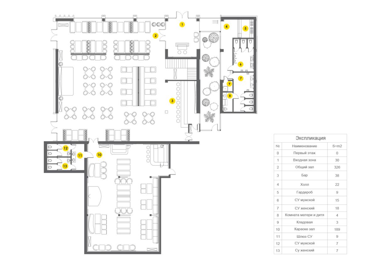
Площадь: 900 кв.м
Проектная группа:
Худ. Рук: Заур Мансуров
Арт директор: Ренат Артов
Дизайнер: Ибрагим Каримов / Маргарита Караваева
Задача:
создать проект нового ресторана ,сохранив существующие деревья на участке
Сделано:
Внешний облик здания окунает нас в архитектуру эпохи постмодернизма. Здесь можно говорить о нескольких стилях одновременно : хай-тек, корпоратизм, неорационализм, экологизм. Фасад отделан минималистично - плиткой под бетон и темным стеклом. Оснавная идея, не нарушит баланс окружающей среды, так как здание было построено на небольшом участке земли с 30 летними дубами вокруг. Мы попытались максимально сохранить деревья, и как следствие появился наш внутренний дворик с дубами в середине постройки. Живые деревья являются нашей гордостью и главным элементом. Скрытая подсветка придает теплоту и романтичность на первый взгляд строгому зданию.
