Restaurant "Vittorio"
Category: Italian restaurant
Location: Tashkent
year: 2016
Status: Implementation
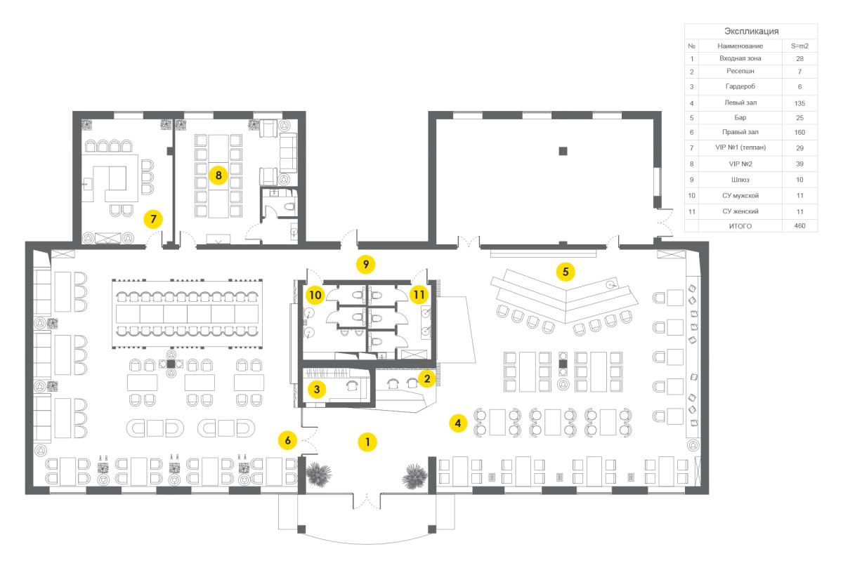
Area: 460 sq.m
Project group:
Art director: Zaur Mansurov
Art director: Renat Artov
Designer: Ibrahim Karimov
Task:
Italian restaurant
Made by:
The interior is closely intertwined with the exterior. In the center of the restaurant is a small garden of existing trees that have been carefully preserved throughout the construction.
Zoning is designed to meet the needs of all groups of visitors.
Conventionally, the restaurant is divided into 3 parts: the main large hall with high ceilings and panoramic windows, VIP area on the second floor and a small karaoke room. We wanted to erase the boundaries of the exterior and interior, so being indoors and looking at the large windows at the floor, visitors can watch nature. Elements of nature are present on the blank walls. So, along the stairs you can see large fern leaves and tropical flowers - this is wall painting. It became the center of the composition and combines 2 floors of the restaurant at once.
The main style of the interior is contemporary and Art Deco New York beginning of the 20th century, which is characterized by a combination of opposing elements, brilliance, strict geometry and glossy and matte surfaces. In the main hall, geometry can be traced on almost all surfaces from floor to ceiling. Underline the geometry of the insert of brass, which add to the interior chic. It is hard not to notice the brilliance emanating from the installation behind the scenes. This art object our studio has developed specifically for this restaurant. In the curved metal surface reflects the entire interior and luxurious massive chandeliers. They can not be overlooked even sitting on the 2nd floor in the VIP room.
VIP hall shares the same "aquarium" with greens. On one side of the "aquarium" landing for large companies at a large table, which, if necessary, is divided into several
