Hi-Tech Geometry
Category: private house
Location: g. Tashkent
year: 2017
Status: Implementation
Area: 790 sq. m
Project group:
Art director: Zaur Mansurov
Architect: Saidaziz Rasulov
3D visualization: Ibrahim Karimov
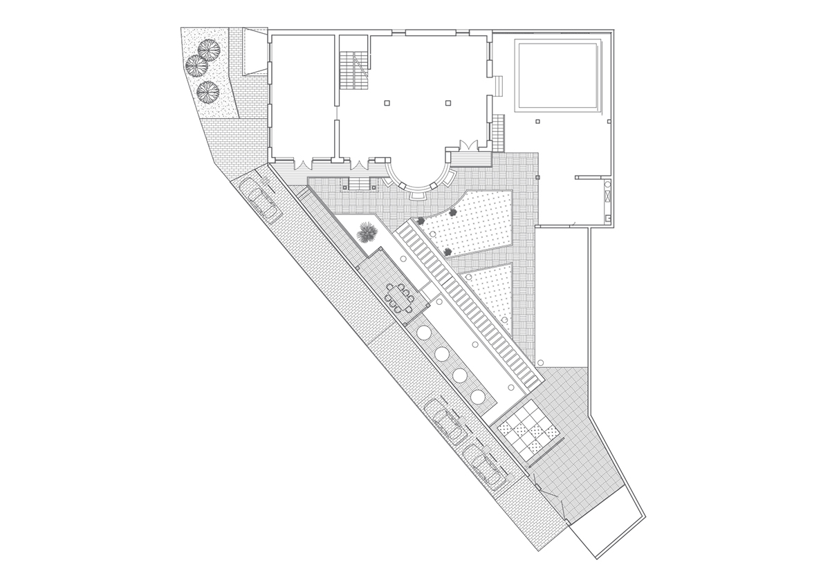
Task:
convert existing home to modern
Made by:
We faced a difficult task. On the site has already been built house, which had an unusual configuration. I wanted to create a modern facade in the high-tech style, which additionally emphasized unusual shapes.
To do this, we proposed to use WPC panels under the tree, the usual painting in white, travertine and granite. Due to these materials, we made the facade play with semitones and contrasts. Complement the picture window frames in anthracite and glass canopies, hung on elegant metal cables. In a very detailed and delicate way, our studio approached the facade lighting. The shape of the lamps, their location, the color of the lamp and how it will shine were carefully considered.
The landscape of the site was also developed separately. For the tracks and curbs we used the same travertine as on the facade. The plot turned out to be multifunctional, as the summer kitchen, swimming pool, sports field and green areas for landscape compositions are located here.
