Modern house "Bogishamol"
Category: private residential building
Location: Samarkand, Uzbekistan
year: span> 2018
Status: Implementation
Area: 545 sq.m
Project group:
Art director: Zaur Mansurov
Architect: Anwar Ayturaev
Task:
create a modern facade using simple finishing materials
Made by:
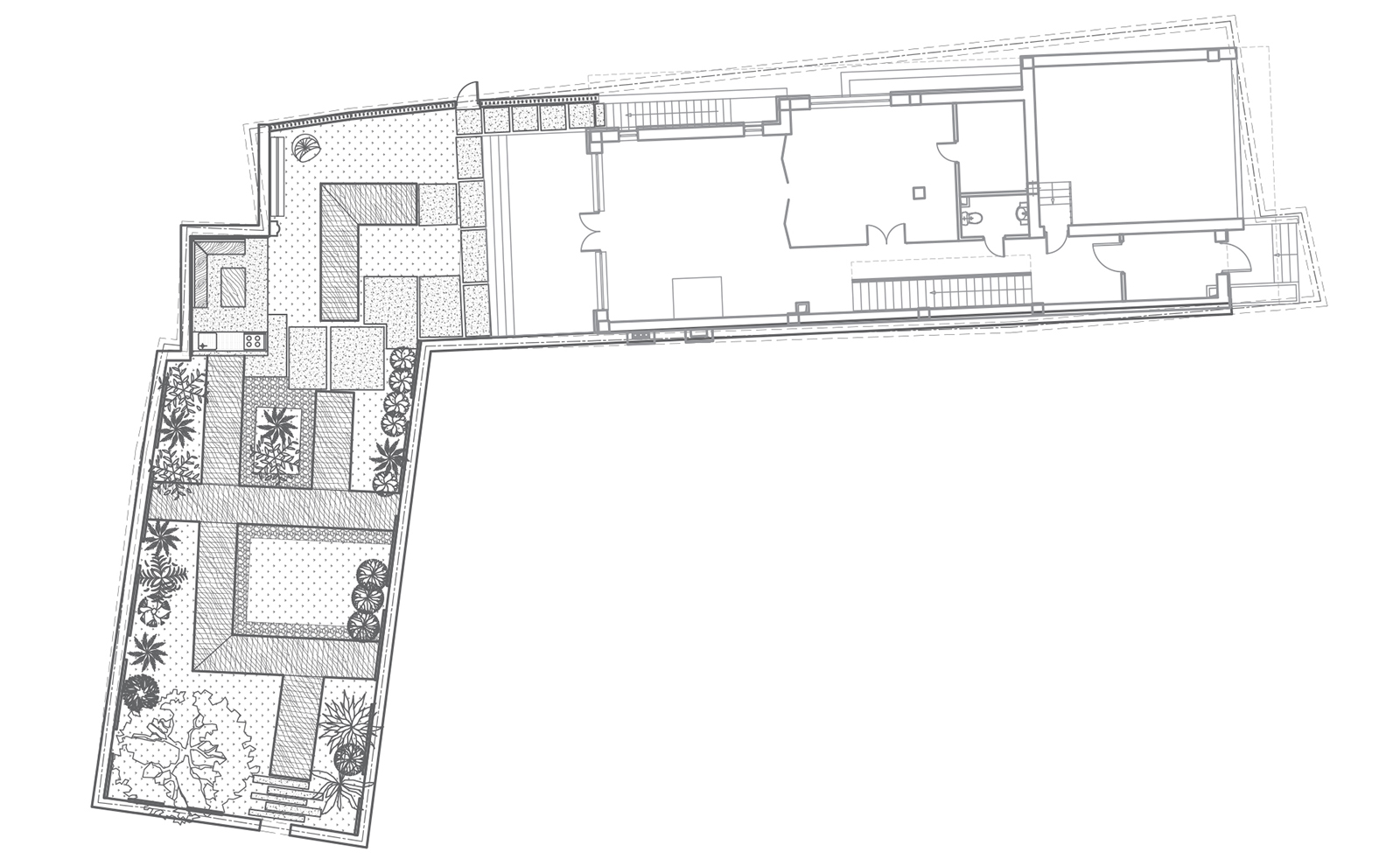
The plot is surrounded on two sides by private houses, due to which it has a very elongated disproportionate shape.
It was necessary to design the house literally "from scratch" and therefore the primary task was to have a competent planning solution. Conventionally, the site was divided into 2 parts.
In the first part the house is located directly, and perpendicular to it is a garden with a summer kitchen.
The style of the house is modern. To finish the facade, we suggested using Samarkand brick in combination with decking and black metal profiles on the windows. The attic floor outside is sheathed by Norwegian anthracite profiled sheeting. To protect against the sun on the windows, we used louvered grilles in the color of the window profile. In addition, these blinds set the rhythm and shade the light brick, thereby enlivening the facade.
The main style of the house and buildings on the site -modernism. The carport for the summer kitchen has a flat plexiglass roof. Framework for a canopy from a tree.
