Restaurant "Anjir"
Category: Restaurant
Location: Tashkent
year: 2017
Status: Implementation
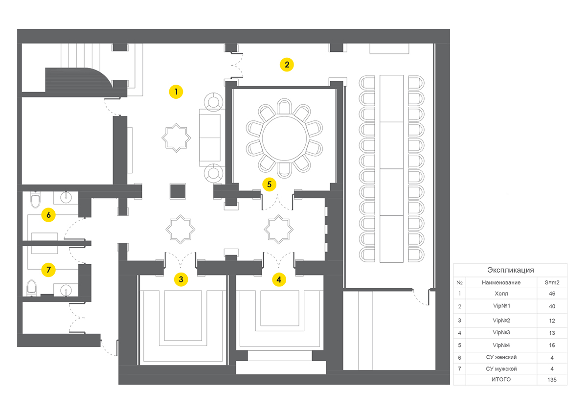
Area: 363 sq.m
Project group:
Art director: Zaur Mansurov
Art director: Renat Artov
Designer: Donier D
Task:
restaurant of Azerbaijan cuisine
Made by:
The main highlight of the interior was the fireplace. It is made according to our sketch and decorated with hand-made ceramic tiles. Each piece of furniture is exclusive and unique. In the hall a lot of wall paintings, the implementation of which took almost three months.The walls are lined with old and rare Nicolas brick. Also on the walls there is a relief "Old Baku" made by our colleague Hamza Fazylov.
The bar and decorative wall panels are finished with bulk ceramics by local craftsmen and oak veneer.Hanging lamps in the Moroccan style add to the interior the spirit of antiquity and at the same time fill it with warmth. There is an abundance of carpets on the floor, which are full of a variety of patterns and give a homely atmosphere.
